|
|
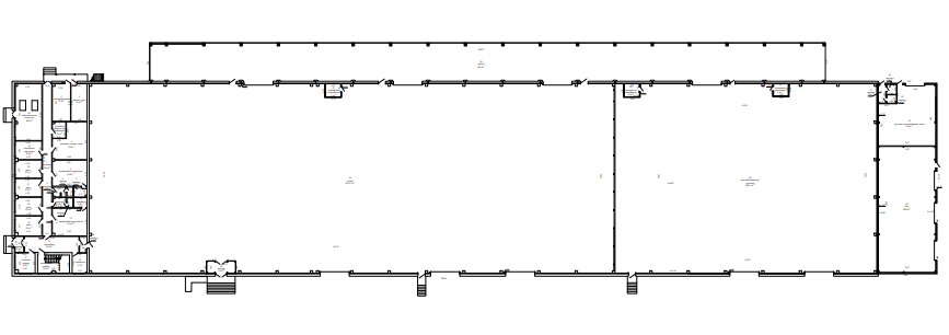
Помещения располагаются в здании многофункциональном Карьерная, 9. Год постройки 2014. Площадь от 500 до 3 500 кв.м. Высота потолка 6 м. • Свободная планировка с возможностью адаптации помещения под потребности Арендатора; • Система автоматического пожаротушения; • Допустимая статическая нагрузка на пол, т/м2 8; • Рампа шириной 6 м, высотой 0,7 м с навесом; • 8 автоматических ворот, оснащенные тепловыми воздушными завесами; • 4 перегрузочных тамбура с уравнительной платформой; • Зенитный фонарь вдоль всего складского помещения; • Площадки временного отстоя транспорта.
|

удачная планировка

грамотное расположение

Профессиональное управление

IT-Инфраструктура
27 28 77
27 28 99